Bachelorproef

Voor mijn bachelorproef heb ik gekozen om een oud postsorteercentrum om te vormen tot een sport- en danscomplex. Het pand is gelegen dichtbij het centrum van Evergem en in de omgeving van verschillende scholen. Voor dit pand werd er gevraagd om na te denken over zowel binnen- als buiteninrichting.

Na een grondige analyse heb ik gekozen voor boulderen. Boulderen is een muurklimmen zonder beveiliging die tot een maximum hoogte van 4 meter kan uitgeoefend worden. Het is een opkomende sport die zowel binnen als buiten beoefend kan worden, ideaal voor de grote omgeving die rond het pand aanwezig is.

Als concept ben ik op zoek gegaan naar plaatsen waar boulderen in de natuur voorkomt. De Grand Canyon werd daarbij mijn inspiratiebeeld. De verschillende grondlagen die aanwezig zijn gebruikte ik om mijn kleurenpalet op te stellen en te starten met het ontwerp.

Om het pand toe te treden is er een toegangsweg voorzien die vertrekt vanaf de straat. Vanuit deze toegangsweg kome je voorbij de klimzaal en krijg je een eerste zicht op deze sport. Je wandelt door het boulder buiten park naar de toegang van het pand.

Buiten wordt er gewerkt met natuurlijke boulderblokken zonder grepen. Hierdoor word je beter voorbereid wanneer je ‘vrij’ gaat klimmen. De vloer bestaat uit kunstgras en houtschilfers als valdemping. Wanneer je de blokken buiten wil gebruiken is het de bedoeling dat je een valmat huurt of koopt om incidenten te voorkomen. Boulderen is een fascinerende sport om naar te kijken, daarom heb ik gekozen om picknicktafel van extremis buiten voorzien. Deze bestaat namelijk in een halve versie waardoor je kan kijken naar de klimmers.

Eenmaal in het pand zie je meteen mensen klimmen door de positie van de klim put. Aan de linkerkant vindt je het onthaal die ook dienst doet als bar. De bijhorende lounge kan gebruikt worden als wachtruimte.

De fitnessruimte is verbonden met deze lounge. Deze wordt gebruikt door klimmers om hun spieren te trainen in functie van het klimmen. Deze kan ook gebruikt worden als opwarmruimte.

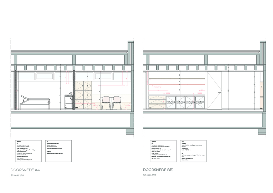
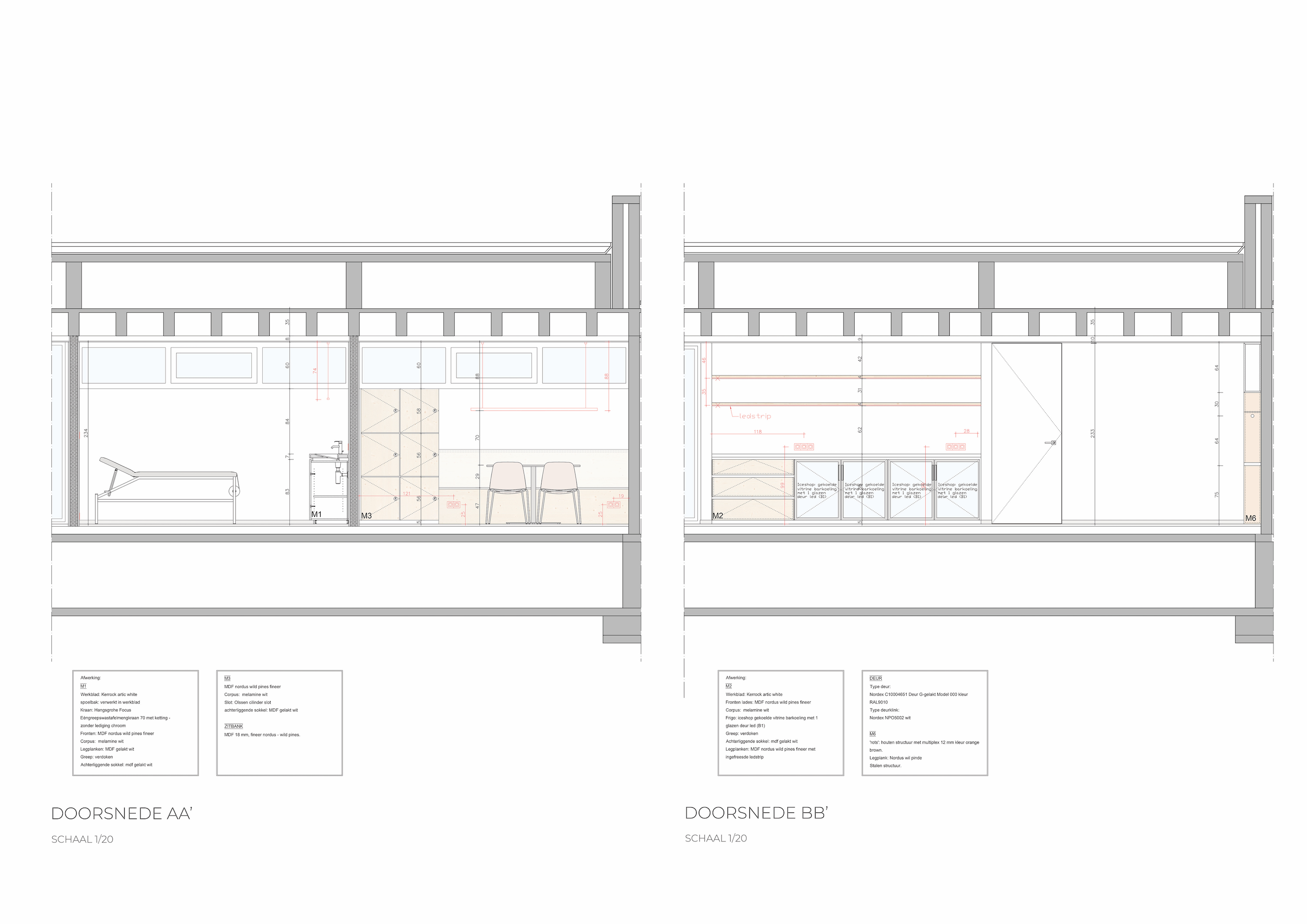
Achter de bar is er een EHBO-post en een personeelsruimte. Hier hebben de werknemers een locker en kunnen ze hun pauze nemen. Verbonden aan de bar is er een kleine shop waar je producten kan kopen in functie van de sport.

Voorbij de klim put bevinden zich de kleedkamers met douches en de toiletten. Hier zijn ook de lockers voorzien om je spullen op te bergen.

Er is een klein gedeelte voor kinderen met bijhorende verbruiksruimte. Ouders kunnen kijken hoe hun kinderen aan het klimmen zijn. De verbruiksruimte kan ook gebruikt worden door klimmers die even aan een pauze toe zijn.

Tenslotte is er een uitgang naar het terras. Deze is gelegen aan het ‘kindergedeelte’. Vanaf dit terras heb je zicht op de outdoor klimmers.